El Boletín oficial de Cantabria publica hoy el anuncio de la Dirección general de Urbanismo y ordenación del territorio dependiente de la Consejería de Obras Públicas, ordenación del territorio y urbanismo con la resolución por la que se formula de declaración ambiental estratégica del Plan especial de ordenación de las parcelas equipamentales obtenidas con el desarrollo de las Unidades de Ejecución U.E.-1.24, U.E-1.26, U.E.-1.33 y U.E.-1.34 del Plan General de Ordenación Urbana de Castro Urdiales (zona del Pachi Torre).
Las determinaciones ambientales de esta Declaración Ambiental Estratégica se incorporarán e integrarán en el Plan Especial que vaya a ser sometido a aprobación definitiva y en sus instrumentos de desarrollo.
El objetivo de las medidas ambientales será la adecuada conservación y protección del medio ambiente. Toda modificación introducida en el Plan Especial, como consecuencia de esta declaración ambiental, o de las consultas e información pública, no supondrá una nueva revisión o formulación de esta, salvo que el órgano promotor considere la modificación de carácter sustancial, y suponga un nuevo período de información pública y consultas. Se hace público para general conocimiento, indicándose que la misma se encuentra a disposición de los interesados en las dependencias de la Dirección General de Urbanismo y Ordenación del Territorio, sitas en la C/ Lealtad, 23, 39002 Santander, así como en su página web a través del siguiente enlace: https://aplicacionesweb.cantabria.es/gevamur/publico/documentos/ver/020.5.0001
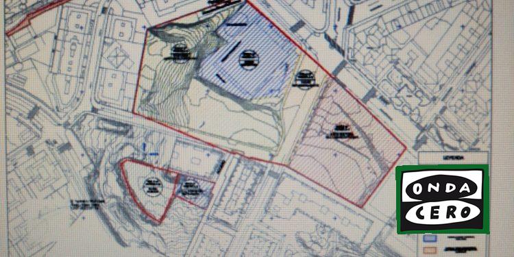
Para la decisión de realizar una planificación espacial, ha resultado decisivo, la necesidad que tiene Castro Urdiales del establecimiento de un nuevo Centro de Salud. Siendo, por su ubicación y superficie, los terrenos adecuados, el Ayuntamiento hizo un primer intento de tramitación del expediente de cesión de una parcela para la ejecución del proyecto por parte de la Consejería de Sanidad del Gobierno de Cantabria. La cesión resultó fallida principalmente por la ausencia de una planificación de los espacios dotacionales. Y, en segundo término, de un Cine/Teatro como equipamiento sociocultural, dotando al complejo equipamental de las dotaciones viarias. Es por ello que resulta obligada la aprobación y ejecución del correspondiente Plan Especial para que los citados sistemas generales puedan planificarse unitariamente, como una actuación en suelo urbano y ya urbanizado procedente de la gestión urbanística, y asignado a estos fines.
Se señala además que aún cuando fueron aprobados varios Estudios de Detalle para cada una de las cuatro (4) Unidades de Ejecución; Proyectos de Urbanización, uno para cada una de las UEs, y Proyectos de compensación o de reparcelación, y que los mismos se vieron sujetos a procesos penales, la única alternativa que no se puede contemplar es la consistente en no realizar la Ordenación concreta del suelo procedente de esa gestión. La sentencia judicial que se acordó para la zona no decreta demolición alguna ni de edificaciones, ni de ningún tramo de la urbanización pública, sino lo que es muy distinto, le ordena al Ayuntamiento a restablecer la legalidad urbanística infringida, y por los medios legalmente previstos al efecto. En cuanto a los referidos Estudios de Detalle, su mayor carencia es la de haber sido tramitados para un desarrollo parcial de cada una de las cuatro citadas Unidades de Ejecución. Su inadecuación para ordenar sistemas generales, y para llevar a efecto las determinaciones en él previstas habrían exigido la aprobación de un Plan Especial de Reforma Interior (en adelante PERI), cuando el planeamiento impone el desarrollo integral de la zona dotacional. En consecuencia, en aplicación de tales pronunciamientos se infiere que, no siendo el procedimiento idóneo, los titulares de los terrenos donde se desarrolló la actuación, no han adquirido derechos edificatorios por encima de las determinaciones fijadas en el PGOU. Pero el Ayuntamiento ha de acometer, por sentencia judicial, una ordenación cohesionada de toda la superficie que afecte al bien jurídico protegido: los equipamientos públicos.

































